物件資料
| 物件名稱 | ニュービラ三軒茶屋 | 總價 |
2,300
万円
23,000,000日圓 = 4,830,000新台幣 |
|---|---|---|---|
| 建築年月 | 1982年01月 | 投報率 | 4.7% |
| 現況 | 出租中 | 每月租金 | 90,000円 |
| 交通資訊 | 東急電鉄 田園都市線 三軒茶屋 車站 徒步3分 | 地址 | 東京都世田谷区三軒茶屋1丁目33−16 |
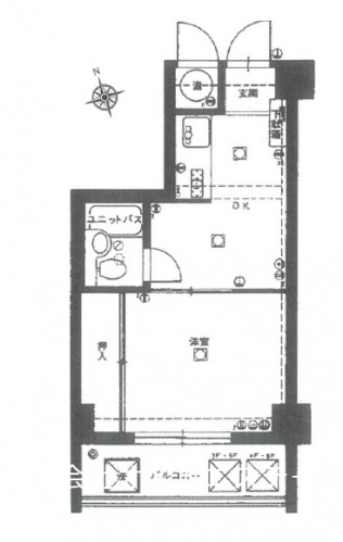
| 專有面積 |
25.02平方公尺
(7.57坪) |
陽台 |
有
陽台面積
5.33平方公尺
(1.61坪) |
| 建物結構 | RC | 土地權利 | 所有權 |
| 種類 | 大樓 | 格局 | 1DK |
| 總戶數 | 24 | 總樓層 |
6
所在樓層
5
|
| 管理費 | 6,945円 | 電梯 | 有 |
| 修繕積立金 | 10,810円 | 其他費用 | 2,200円 |
| 備註說明 | ★外壁貼磁磚 組合費:月額200円 付加管理費:月額2,000円 |
||


回物件列表